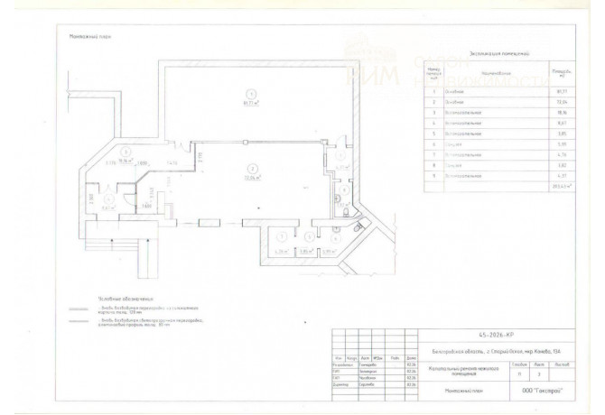
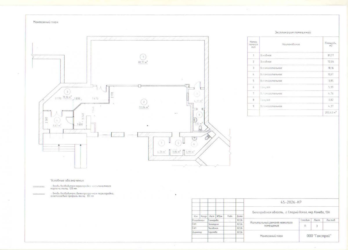
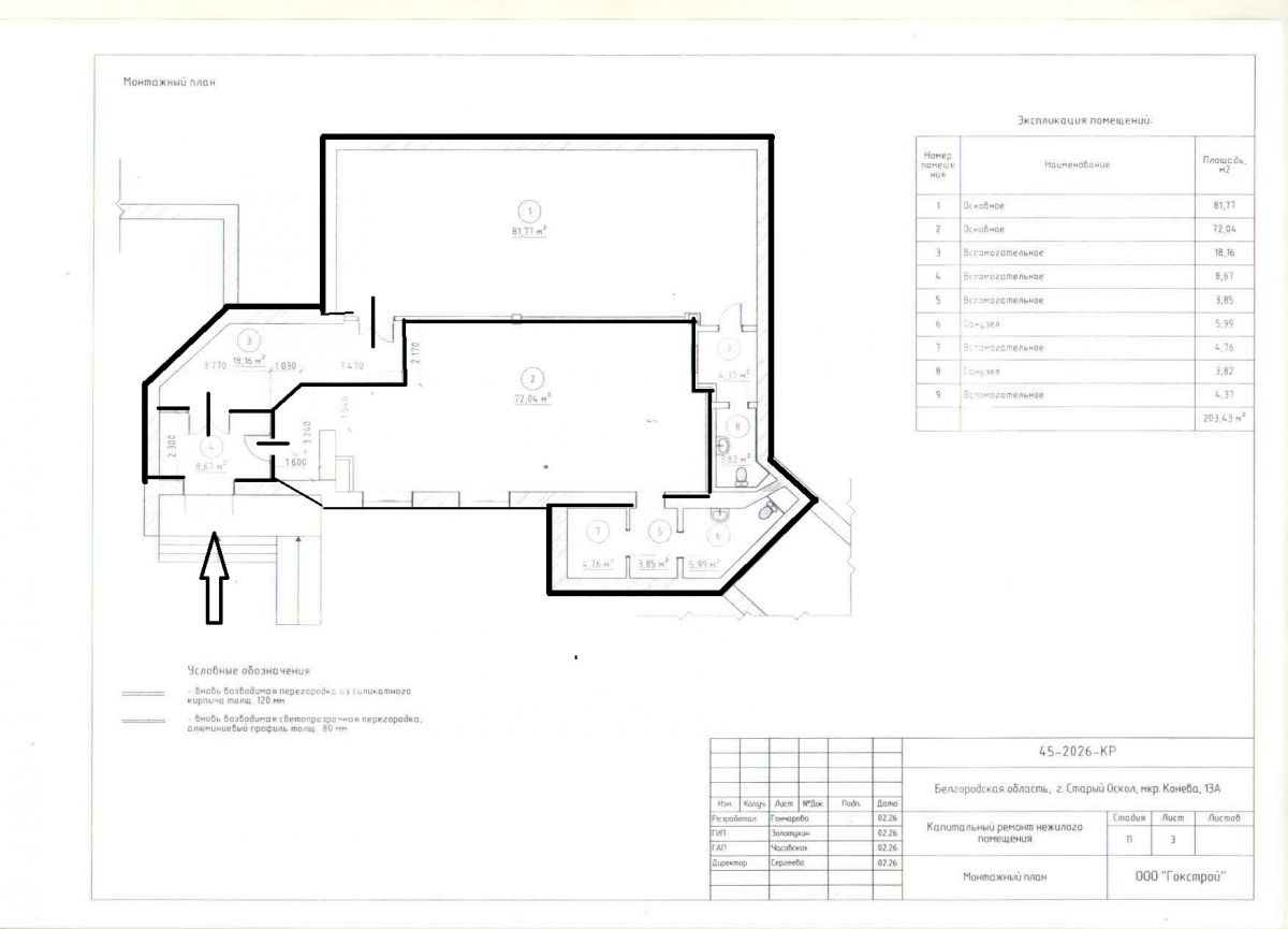
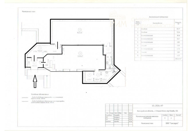
- 193 кв.м
- 1 этаж
- блочный
240 000 Р
1 244 руб кв.м
35
08.8.2025 17:19
0
аренда
Россия,Белгородская область,Старый Оскол городской округ,Старый Оскол,Конева мкр, 13
Характеристики
Высота потолков: 3
Наличие пожарной сигнализации: да
Наличие электроснабжения: да
Охрана в здании: да
Парковка: есть
Система отопления: да
Тип сделки: прямая аренда
Уместен ли торг: да
Электрическая мощность (кВт): 50
Описание объекта
Объект на карте
Похожие объекты

Россия,Белгородская область,Старый Оскол городской округ,Старый Оскол,Степной мкр, 13
аренда
277 200 Р

Россия,Белгородская область,Старый Оскол городской округ,Старый Оскол,Центральный мкр, 4
аренда
268 000 Р